Bilocale in vendita

Valledoria, Viale Italia - La Muddizza
€ 89.000
2 locali 2 locali
40 Mq 40 Mq
1 bagno 1 bagno

Bilocale in vendita

Valledoria, Viale Italia - La Muddizza

Descrizione annuncio

LA MUDDIZZA - VIA ITALIA - In posizione centrale e a pochi passi dai principali servizi.

Ti proponiamo in vendita un accogliente bilocale situato al piano terra con terrazza, incastonato nella cornice del Residence 'Il Gabbiano': un elegante complesso residenziale con piscina condominiale, realizzato nel 2008.

Il residence sorge lungo la via principale di La Muddizza, a soli 2 km da Valledoria e La Ciaccia. Una posizione strategica che permette di raggiungere in pochi minuti le spiagge più affascinanti della zona, mantenendo la comodità di avere supermercati, banche, bar, tabacchi e ristoranti a portata di mano, tutti facilmente raggiungibili a piedi.

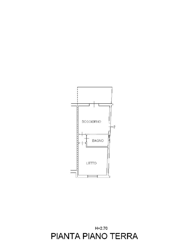
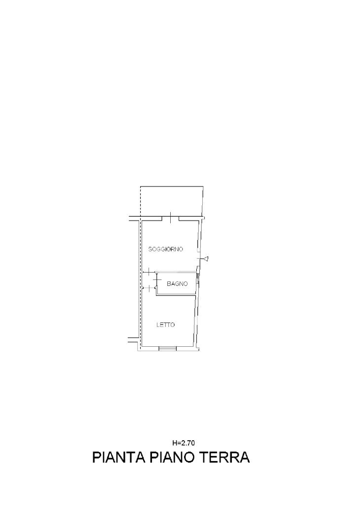
L’appartamento è così composto:

Accesso indipendente tramite cancelletto privato che conduce alla zona giorno con angolo cottura;

Camera matrimoniale ampia, luminosa e pensata per il massimo comfort;

Bagno finestrato completo di doccia;

Terrazza abitabile con vista panoramica e affaccio diretto sulla piscina condominiale, il tocco perfetto per completare questa splendida proprietà.

Per completare la proprietà, nel Residence è presente un posto auto condominiale dove vi è la possibilità di parcheggiare la propria auto a pochi passi dall'ingresso dell'immobile.

La frazione di La Muddizza è immersa in un contesto tranquillo e curato, molto apprezzato per l'ottima qualità della vita. È la soluzione ideale per chi cerca un rifugio rilassante ma ben collegato.

Grazie alla facilità di gestione, ai costi contenuti e all’alto potenziale turistico, l’immobile si presta perfettamente come casa vacanze o investimento a reddito. Una proposta imperdibile per coppie, famiglie o per chiunque desideri un punto d'appoggio vicino al mare, con l'esclusivo vantaggio della piscina sempre a disposizione.

Mostra tutto

Nelle vicinanze

Trasporto pubblico Trasporto pubblico
Trasporto pubblico
1,5 Km
Ricariche auto elettriche Ricariche auto elettriche
Eneldrive Parcheggio Via Aldo Moro
2,9 Km
Scuole Scuole
Scuole
2,9 Km
Supermercati Supermercati
Superconcas
90 m
Supermercato G. Cossu S.A.S Localita' Maragnani
1,6 Km
Supermercato
1,9 Km
LD market
2,6 Km
Superconcas - Supermercati Di Concas Agnese E C. Snc
2,6 Km
Bar Bar
Bar
1,7 Km
Ristoranti Ristoranti
Bar - Restaurant Pizzeria
1,7 Km
Ristorante Pizzeria La Ciaccia
2,0 Km
La Locanda del Mare
2,0 Km
Park Hotel
2,3 Km
Il merlo indiano
2,4 Km
Mostra tutto

Caratteristiche

Rif.:
61178249
Piano:
Terra con giardino di 2
Totale piani:
2
Posti auto:
1
Terrazzi:
1
Camere da letto:
1
Mostra tutto
Prezzo Prezzo
€ 89.000
Rata mutuo Rata mutuo
€ 416 / mese
Spese annue Spese annue
€ 600
Proponi il tuo prezzoProponi il tuo prezzo

Classe Energetica

C
C
C
C
C
C
C
C
C
Anno di costruzione:
2008
Riscaldamento:
Autonomo
Tipo impianto:
Ad aria
Tipo alimentazione:
Aria

Ti interessa visionare l'immobile?

Fissa un appuntamento  Fissa un appuntamento

Richiedi informazioni

Clicca su Leggi per aprire l'informativa
* Questi campi sono obbligatori

Calcola il tuo mutuo

Semplice e senza impegno
Anticipo

( % )
Mutuo

( % )

pochi semplici passi

inserisci i tuoi dati
Questionario completato
Grazie per aver richiesto un appuntamento senza impegno con un nostro Consulente del Credito e Assicurativo.

Hai inserito correttamente tutti i dati necessari e a breve riceverai una e-mail con un link da convalidare per inviare i tuoi dati.
Affiliato
Studio Castelsardo Srls
Via Nazionale, 50 07031 Castelsardo (SS)

Il nostro staff


  • Elisabetta Caggiari
    Collaboratrice

  • Simona Fois
    Affiliata

  • Martina Marongiu
    Collaboratrice

  • Claudia Pinna
    Collaboratrice

  • Giovanni Ruggiu
    Responsabile

  • Maurizio Sanna
    Affiliato

  • Martina Tombolillo
    Collaboratrice
Via Nazionale, 50 07031 Castelsardo (SS)
Zona: Castelsardo-Valledoria
Mostra su mappa
Orari: dal lun. al ven. mattino 09:00 - 13:00 sera 15:00 - 19:00 sab. mattina 09:00 - 13:00
Affiliato
Studio Castelsardo Srls
Via Nazionale, 50 07031 Castelsardo (SS)

2026 Tecnocasa Franchising S.p.A. - P. IVA 08365160152 - Via Monte Bianco 60/A 20089 Rozzano (MI). Ogni agenzia ha un proprio titolare ed è autonoma. Privacy policy | Policy utilizzo | Cookie policy