Trilocale in vendita

Valledoria, Via Enrico Berlinguer - Codaruina
€ 139.000
Prezzo aggiornato
3 locali 3 locali
50 Mq 50 Mq
1 bagno 1 bagno

Trilocale in vendita

Valledoria, Via Enrico Berlinguer - Codaruina

Descrizione annuncio

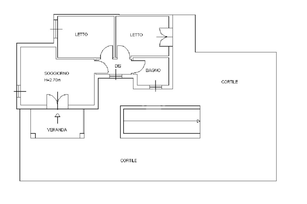
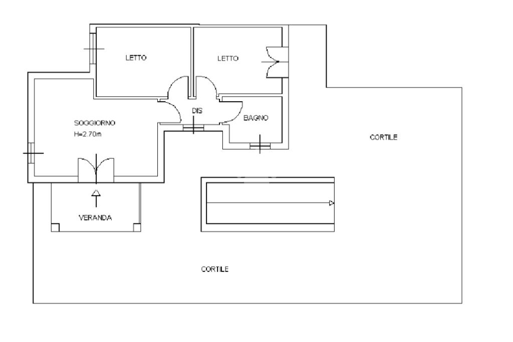
VALLEDORIA - VIA ENRICO BERLINGUER 1 - TRILOCALE

In contesto tranquillo e ben servito, proponiamo trilocale al piano terra con accesso semiindipendente, ideale per chi cerca comodità e spazi esterni.

La costruzione è del 2006 L’abitazione si compone di soggiorno con angolo cottura, due camere e bagno. All’esterno, cortile privato perfetto per pranzi all’aperto, area bimbi o relax.

Completa la proprietà un posto auto e una cantina di pertinenza al piano semiinterrato, utile come deposito, locale hobby o ricovero biciclette.
Ottima soluzione per famiglie, coppie o per chi desidera uno spazio facilmente gestibile senza rinunciare a un’area esterna.

La zona è ben servita e si trova a pochi passi dal centro e a circa 2 km metri dal mare.

Mostra tutto

Nelle vicinanze

Trasporto pubblico Trasporto pubblico
Trasporto pubblico
2,9 Km
Ricariche auto elettriche Ricariche auto elettriche
Eneldrive Parcheggio Via Aldo Moro
680 m
Scuole Scuole
Scuole
530 m
Supermercati Supermercati
Pam club supermercato
130 m
Superconcas - Supermercati Di Concas Agnese E C. Snc
930 m
LD market
1,3 Km
EURO Spin
1,5 Km
Supermercato G. Cossu S.A.S Localita' Maragnani
2,9 Km
Negozi Negozi
Negozi
1,1 Km
Bar Bar
CHIOSCO BAR-L'ALTA BHANDA cafè
1,3 Km
Ristoranti Ristoranti
Rigoletto
500 m
Pazza Idea - Da Uccio
690 m
Ristoranti
1,1 Km
Park Hotel
1,4 Km
Il merlo indiano
2,0 Km
Mostra tutto

Caratteristiche

Rif.:
61137866
Piano:
Terra di 1
Totale piani:
1
Box:
1
Posti auto:
1
Balconi:
1
Mostra tutto
Prezzo Prezzo
€ 139.000
Rata mutuo Rata mutuo
€ 649 / mese
Spese annue Spese annue
€ 0
Proponi il tuo prezzoProponi il tuo prezzo

Classe Energetica

G
G
G
G
G
G
G
G
G
Anno di costruzione:
2006
Riscaldamento:
Autonomo
Tipo impianto:
Ad aria
Tipo alimentazione:
Aria

Prezzo ridotto di €1 (7%%)

Ti interessa visionare l'immobile?

Fissa un appuntamento  Fissa un appuntamento

Richiedi informazioni

Clicca su Leggi per aprire l'informativa
* Questi campi sono obbligatori

Calcola il tuo mutuo

Semplice e senza impegno
Anticipo

( % )
Mutuo

( % )

pochi semplici passi

inserisci i tuoi dati
Questionario completato
Grazie per aver richiesto un appuntamento senza impegno con un nostro Consulente del Credito e Assicurativo.

Hai inserito correttamente tutti i dati necessari e a breve riceverai una e-mail con un link da convalidare per inviare i tuoi dati.
Affiliato
Studio Castelsardo Srls
Via Nazionale, 50 07031 Castelsardo (SS)

Il nostro staff


  • Elisabetta Caggiari
    Collaboratrice

  • Simona Fois
    Affiliata

  • Martina Marongiu
    Collaboratrice

  • Claudia Pinna
    Collaboratrice

  • Giovanni Ruggiu
    Responsabile

  • Maurizio Sanna
    Affiliato

  • Martina Tombolillo
    Collaboratrice
Via Nazionale, 50 07031 Castelsardo (SS)
Zona: Castelsardo-Valledoria
Mostra su mappa
Orari: dal lun. al ven. mattino 09:00 - 13:00 sera 15:00 - 19:00 sab. mattina 09:00 - 13:00
Affiliato
Studio Castelsardo Srls
Via Nazionale, 50 07031 Castelsardo (SS)

2026 Tecnocasa Franchising S.p.A. - P. IVA 08365160152 - Via Monte Bianco 60/A 20089 Rozzano (MI). Ogni agenzia ha un proprio titolare ed è autonoma. Privacy policy | Policy utilizzo | Cookie policy